
DISCOVERY END OF TRIP FACILITIES
Chapter 2 - Design Considerations
Photo Source: Gray Puksand
Discovery End of Trip Facilities
Chapter 2 - Design Considerations
COMMERCIAL
11/2/20244 min read
More than just functionality...
The design of end-of-trip facilities (EOTF) in commercial buildings has evolved, focusing on more than just functionality. Modern EOTFs prioritise:
Functionality - Practical, user-friendly layouts that meet everyday needs.
Longevity - Robust materials and designs tailored for ease of commercial maintenance and long-term operation.
Wellness - Enhanced user experience, fostering wellness trends through pleasant, accessible spaces that cater to a diverse range of users.






A Welcoming and Safe Arrival Experience
First Impressions matter. Entry and exit points should be intuitive and visible from the street, providing easy access for cyclists and other commuters. With the growing trend toward on-site wellness amenities, EOTF designs should be inclusive, accommodating a diverse range of users beyond just cyclists.






Safety and Accessibility – Dedicated pathways for pedestrians, cyclists, and vehicles ensure safe movement for all users. As EOTFs are often located in the lower levels of basements, well-lit routes and clear wayfinding support easy navigation.
Signage should be easy to spot, cohesive with the building's internal design theme, and reflect the EOTF's unique style




A welcoming lobby
With the rise in wellness-focused design, EOTFs are evolving to create a sensory-rich welcome lobby experience that sets a positive tone through visual appeal, pleasant aromas, and calming sounds.
A prime example is Chifley Lifestyle, which beautifully merges EOTFs with wellness elements, guiding users on a seamless wellness journey.
Upon entry from basement carpark, users are welcomed by an impressive automatic timber door, leading into an elegant lobby equipped with hydration stations. The double doors open to a serene, spa-like atmosphere enhanced by soothing background music and a signature diffuser scent, immediately immersing users in a sense of calm.
From here, users are guided down a gently curved corridor from the basement car park, designed with a hospitality-inspired aesthetic and high-end Japanese spa influences. This peaceful transition space helps users unwind after a long commute or workout. Lockers, changing rooms, and shower areas are conveniently located, allowing a smooth and refreshing start to the day.
Chifley Lifestyle’s thoughtful design fosters relaxation in every detail, with materials like natural stone, glass, and aged brass, chosen for their timelessness and quality. High-end fixtures and a sophisticated, triple-height space contribute to a luxurious experience, making the EOTF journey both calming and revitalizing.
Photo Source: Gray Puksand


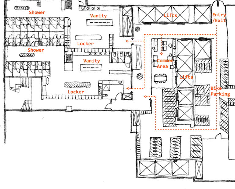
User Flow and Layout
A well-planned user flow smoothly guides people from a central arrival area into designated zones for toilets, lockers, and showers, ensuring an easy transition between wet and dry areas.
A seamless user journey is essential for user satisfaction. Poor layout choices, such as a small changing area or poorly placed WC, can disrupt the flow, making the experience less enjoyable.
An ideal design features clear zoning for lockers, showers, and changing areas, with a spacious, inviting entrance that avoids cramped walls or lockers upon entry.
Placing core amenities near entry and exit points with consolidated wet areas minimizes maintenance and costs. Thoughtful additions like bench seating in showers enhance comfort and privacy, while bike amenities (e.g., double-stacked racks, vending services) add convenience.


Technology Integration
Smart building features play a pivotal role in elevating the end-of-trip facilities (EOTF) experience, delivering tangible benefits that justify the investment. Here are key areas where technology adds value:
Touchless Entry Points: Seamless access leaves a strong first impression, from street-level entry points, lifts to EOTF doors. Emerging technologies, such as integrating Google or Apple Wallet, eliminate the need for traditional card swipes. This not only streamlines the user journey but also improves staff access control and supports ad hoc events like wellness classes or visitor, short term tenants entry.
Smart Locker Booking Systems: These systems cater to the diverse needs of tenants by offering a range of locker sizes to suit individual preferences. Users can easily reserve lockers either online or through an integrated control panel on the system, ensuring both convenience and flexibility.
Enhanced Amenities: Features like digital screens, TVs, or background music in common areas of EOTFs further enrich the user experience, creating a more engaging and pleasant environment.


Hi! 👋🏼 I'm delighted to welcome you to my little corner of the internet. This blog is my creative outlet and a space where I can share my thoughts, passions, and experiences with you.


Afterthoughts
Tenants now see EOTFs as integral to their well-being and performance, expecting spaces that blend functionality with a hospitality-inspired touch. This growing demand underscores the need to align EOTFs with wellness trends while enhancing the value of office leases.
To avoid pitfalls like excessive spending or prioritising aesthetics over practicality, it’s essential to establish a thoughtful EOTF strategy early. By integrating this with the overall building amenity plan and tenant requirements, EOTFs can achieve a cost-effective, user-centered, and balanced design.
Thank you for reading this series! You can check out my other posts here.
Have an amazing day!
With love,
